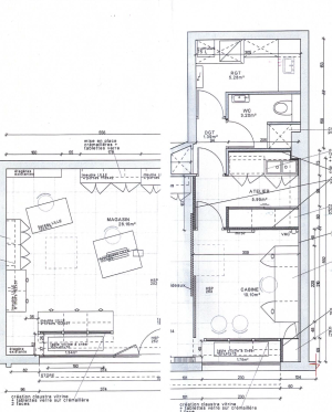
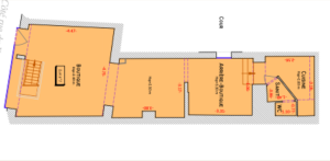
A LOUER BOUTIQUE - 75016 PARIS - 57m2
Local commercial 57 m² - Paris
Boutique à louer, située dans le XVI° arrondissement de Paris, à proximité de la Place du Trocadéro,dans un environnement commerçant et de standing, Une boutique au pied d’un immeuble en...


























